Firenze, Villa rinascimentale con parco privato

Nuovo
1.350.000,00 €

Dati dell'immobile

 

  • Superficie - 523 mq 
  • Terreno - circa 1550 mq 
  • Categoria catastale - A/8  
  • R.C. - 2.417,02€
  • APE - G 
  • Anno di costruzione - 1500
  • Camere - 5
  • Bagni - 5

 

In un contesto architettonico di grande valore storico, questa dimora al piano nobile combina perfettamente eleganza classica e comfort contemporaneo. Gli ambienti interni, restaurati con materiali autentici e finiture d’epoca, conservano il fascino originario della villa, reinterpretato con cura e sensibilità stilistica.

Architettura e stile

L’impianto architettonico mostra linee armoniose e proporzioni equilibrate che richiamano la tradizione rinascimentale, integrate da interventi successivi che ne hanno valorizzato il carattere monumentale. L’aspetto complessivo riflette un dialogo raffinato tra passato e modernità, esaltato dal restauro attento e rispettoso delle forme originali.

Interni

Gli interni sono caratterizzati da spazi ampi e luminosi, arricchiti da dettagli decorativi di pregio e da pavimenti e rivestimenti di alta manifattura.
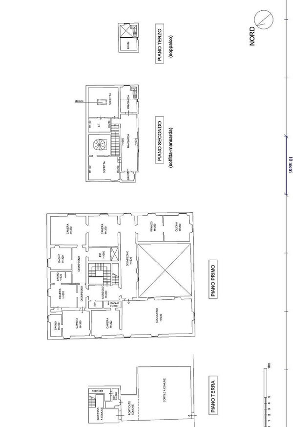
La disposizione si articola su più livelli, offrendo:

  • Al piano principale: ingresso di rappresentanza, grande salone con camino, zona pranzo, cucina abitabile, cinque camere — tre delle quali con bagno privato — ulteriori servizi e vani accessori.

  • Ai piani superiori: ambienti mansardati, studio, locali tecnici e una torretta panoramica.

  • Al piano terra: spazi di servizio e ripostigli.

Spazi esterni

La proprietà include un ampio giardino privato con accesso carrabile, immerso nel verde e ideale per momenti di relax o convivialità. Gli spazi esterni comuni comprendono un’elegante corte interna e un piazzale condiviso, che conferiscono alla villa un’atmosfera di sobria esclusività.

Servizi e dotazioni

Tutte le utenze risultano attive e perfettamente funzionanti. L’immobile è pronto per essere abitato o personalizzato, mantenendo intatto il suo carattere distintivo e il fascino senza tempo della residenza storica.