Gaiole In Chianti, torre del medioevo con piscina

Nuovo
1.350.000,00 €

Descrizione dell'immobile

    Nel cuore più autentico del Chianti, tra dolci colline ricamate da vigneti, cipressi e antichi sentieri, sorge una proprietà semplicemente irripetibile: una magnifica torre medievale toscana che sembra custodire intatto il fascino di un’altra epoca.

    Questa dimora straordinaria non è soltanto una residenza di lusso, ma un’esperienza da vivere. Ogni pietra racconta secoli di storia, mentre gli ambienti, sapientemente restaurati, conservano l’anima originaria della proprietà fondendola con il comfort e l’eleganza contemporanea. Il risultato è un equilibrio raro e raffinato, dove autenticità, privacy e bellezza convivono in perfetta armonia.

    Immersa in circa 3,7 ettari di parco privato, la proprietà regala un senso di pace assoluta e una privacy quasi introvabile. La piscina con copertura elettrica si inserisce perfettamente nel paesaggio, diventando un luogo privilegiato da cui ammirare tramonti spettacolari sulle colline del Chianti.

    La torre, elemento architettonico di straordinario fascino, dona alla casa un carattere unico e scenografico: salendo piano dopo piano, gli ambienti si aprono come un racconto, offrendo scorci romantici, luce naturale e viste mozzafiato sulla campagna toscana.

    Le immagini raccontano già molto, ma dal vivo questa proprietà riesce a trasmettere qualcosa di ancora più raro: emozione. È una di quelle dimore che si ricordano nel tempo, capaci di conquistare chi è alla ricerca di un luogo autentico, esclusivo e profondamente italiano.

    Questa è una delle proprietà più affascinanti e rappresentative oggi disponibili nel cuore del Chianti: un luogo senza tempo, dove vivere la Toscana più vera, elegante e romantica.

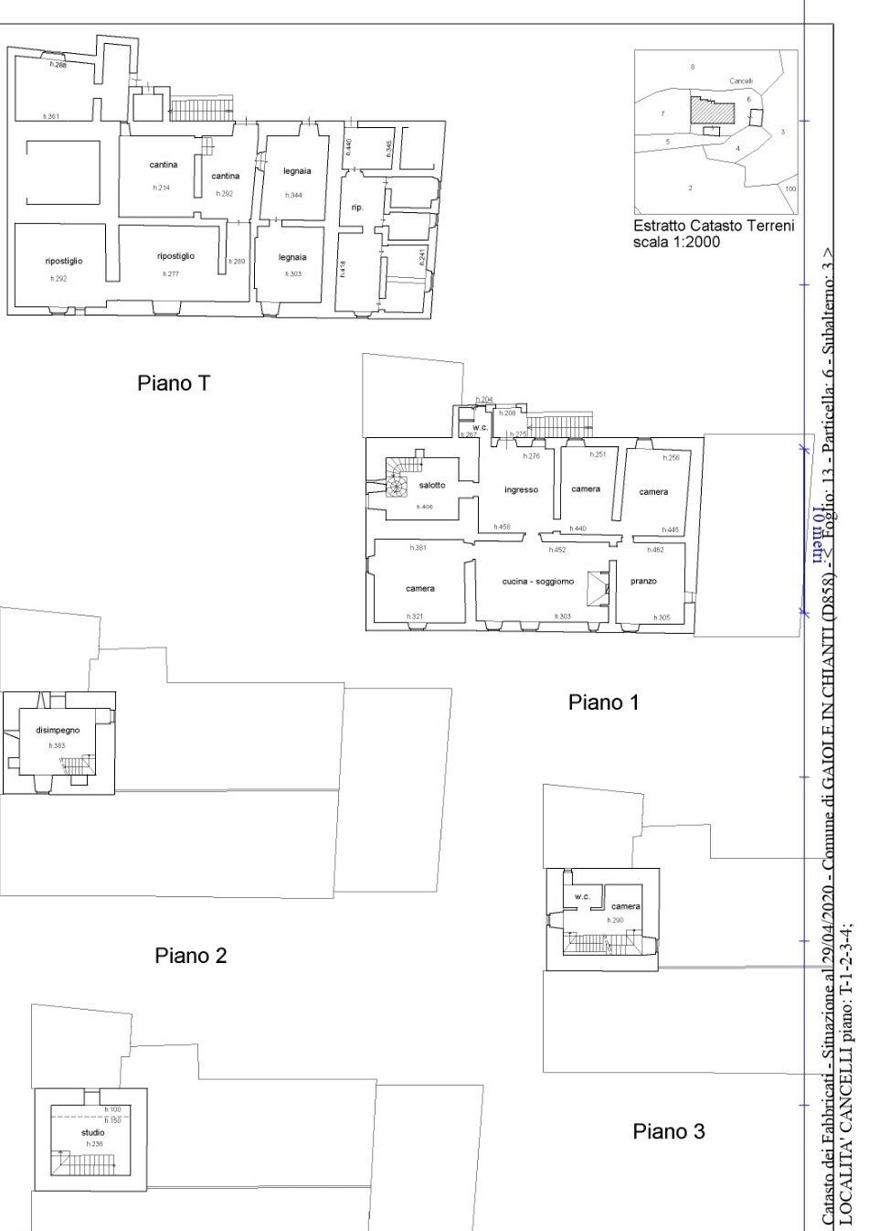
    DESCRIZIONE DEGLI SPAZI
    Villa principale

    Primo piano:

    - ampio ingresso con bagno
    - soggiorno OPEN SPACE con cucina
    - tre camere da letto
    - due bagni
    - cucina (Torre)

    Secondo piano: (Torre)

    - soggiorno

    Terzo piano: (Torre)

    - camera da letto
    - bagno

    Quarto piano: (Torre)

    - studio

    Piano terra:

    - due cantine
    - due legnaie
    - nove ripostigli
    - forno a legna

    Dependance:
    - soggiorno con angolo cottura
    - camera da letto
    - bagno

    Esterni:
    - piscina 60 mq
    - terrazza
    - seminativo: 15453 mq
    - pascolo: 4329 mq
    - bosco:17498

    IL BORGO DI GAIOLE IN CHIANTI

    Nel cuore del Chianti Classico, Gaiole in Chianti rappresenta una delle destinazioni più autentiche e ricercate della Toscana. Circondato da vigneti storici, castelli medievali e strade panoramiche che attraversano colline senza tempo, questo borgo incarna l’essenza più elegante e genuina della campagna toscana.

    Qui il ritmo della vita è lento e raffinato: degustazioni nelle cantine più rinomate, ristoranti d’eccellenza, piccoli borghi in pietra e paesaggi iconici creano un’atmosfera esclusiva e profondamente autentica.

    Celebre anche a livello internazionale per L’Eroica, la storica corsa ciclistica sulle strade bianche del Chianti, Gaiole è il punto di partenza ideale per esplorare le meraviglie della Toscana, tra arte, natura, vino e tradizione.

    Una location straordinaria, amata da viaggiatori e investitori internazionali, dove ogni stagione regala scenari di rara bellezza.