Suvereto, villa immersa nei vigneti biologici

Nuovo
480.000,00 €

Dati dell'immobile

 

  • Superficie - 331 mq
  • Giardino - circa 1900 mq 
  • Categoria catastale - A/2 
  • R.C. - 1074,23€
  • APE - G 
  • Anno di costruzione - 1980
  • Camere - 3
  • Bagni - 2

 

DESCRIZIONE GENERALE

 

Km. 2 dal centro storico di Suvereto

Km 20 dal mare di baratti e Rimigliano 

 

Nella campagna tra Suvereto e Campiglia Marittima, circondata dai vigneti biologici dell’azienda Gualdo del Re, villa di campagna con parco privato di mq.2000 completamente recintato con muretti in pietra, ringhiera e cancello elettrico e pedonale.

La proprietà, raggiungibile tramite strada asfaltata si sviluppa su due livelli. L’abitazione, al piano rialzato è suddivisa in un luminoso ed ampio soggiorno con camino, una cucina abitabile perfettamente attrezzata ed una grande veranda. La zona notte si compone di due camere matrimoniali ed un bagno con vasca. Gli infissi esterni sono in legno con persiane e zanzariere. 

Superficie dell’abitazione mq. 120.

 

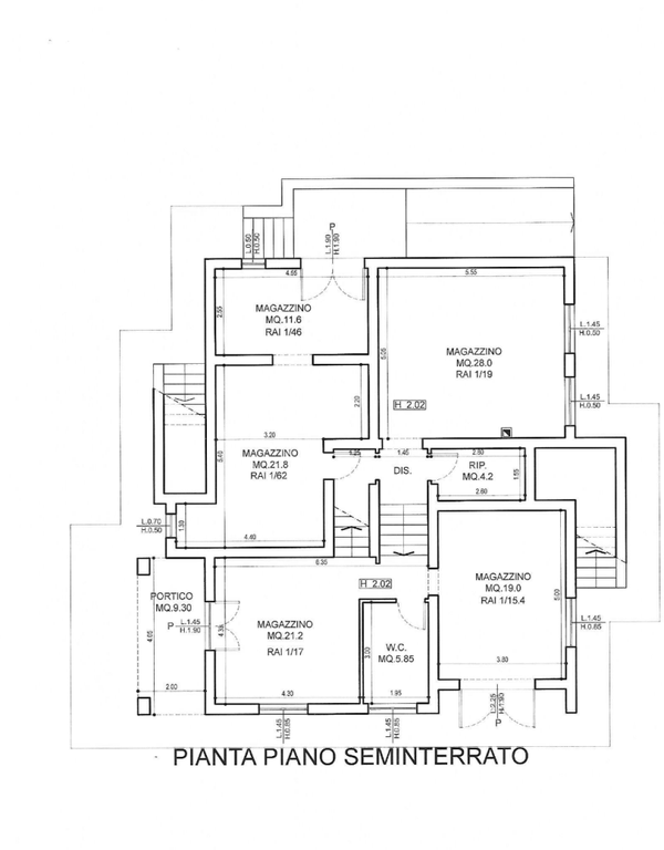
Il piano seminterrato, accessibile sia con scala interna dall’abitazione, sia con accessi autonomi dal giardino ha una superficie di mq. 120 e comprende 5 ampi vani con bagno.

 Nell’immobile è presente un sottotetto vivibile.

 

Il giardino è suddiviso con cura:  porzioni  a prato con impianto di irrigazione, parti con pavimentazioni in cotto e pietra, tettoia per il rimessaggio delle auto ed una superficie  di circa mq. 200 adibita ad orto.

Nella proprietà è proprietà è presente un pozzo artesiano.

 

Utenze attive.

Allacciamento all’acquedotto comunale, energia elettrica, wifi, 

 

IL BORGO

 

Suvereto, sorge tra le colline e il mare splendente della Costa degli Etruschi. Il borgo medievale è considerato uno tra i più belli d’Italia, ed è stato insignito anche della Bandiera Arancione del Touring Club.

Immerso nella natura della Val di Cornia, il paese è un vero scrigno di tesori: le sue mura custodiscono le caratteristiche strade medioevali, case in pietra, palazzi storici e chiese evocative. Tutt'intorno sterminati boschi di castagne, querce e, ovviamente, sugheri, da cui deriva il nome della località.

Avvolto dai profumi della macchia mediterranea, Suvereto è un borgo ricco di arte e di storia, che si distingue per le sue piacevoli viste e la sua conservata anima di luogo tranquillo e di riposo. 

 

Le principali attrazioni a Suvereto

  • Cantina Petra dell’architetto Mario Botta
  • Azienda Agricola Terradonna
  • Cantina Tua Rita.
  • Chiostro e Convento di San Francesco.
  • Rocca Aldobrandesca. 
  • Chiesa di San Giusto. 
  • Palazzo Comunale.
  • Azienda Agricola I Mandorli. 

 

Nei dintorni:

Terme ‘Il calidario’ Venturina terme  Km. 11

Necropoli di Populonia e Castello Baratti km. 20

Borgo di Campiglia Marittima km. 11

 

+393491137593