Follonica, una delle famosissime baracche sulla spiaggia

750.000,00 €

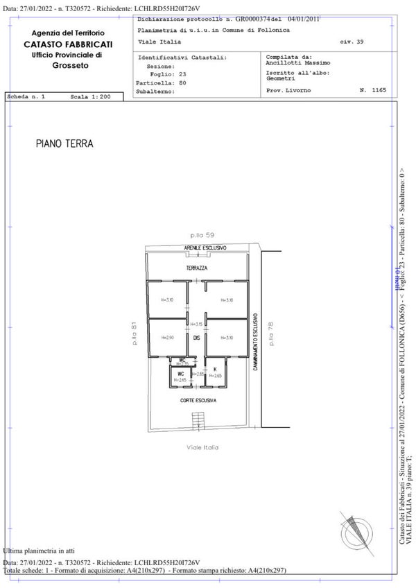
Dati dell'immobile

 

  • Superficie - 103 mq 
  • Categoria catastale - A2
  • APE - G
  • Anno di costruzione - 1914
  • Camere - 3
  • Bagni - 2 

 

DESCRIZIONE GENERALE

 

Le baracche di Follonica rappresentano un elemento distintivo della storia urbana e sociale della città. Originariamente, queste strutture erano semplici capanne in legno costruite direttamente sulla spiaggia dai pescatori locali, utilizzate come ricoveri temporanei per le attività legate alla pesca. Nel tempo, con l'evoluzione della città e l'aumento del turismo, molte di queste baracche sono state ristrutturate e trasformate in abitazioni estive, mantenendo però il loro fascino originale.

 

Oggi rappresenta un'opportunità esclusiva per un investimento locativo.
La sua posizione è non solo suggestiva, ma anche unica: direttamente sulla spiaggia, una caratteristica molto richiesta dai turisti che desiderano vivere un'esperienza autentica e irripetibile. Il sole tramonta tutti giorni davanti casa!

La villa è stata completamente ristrutturata, è pronta all’uso e dispone di una splendida terrazza fiorita con angolo barbecue, perfetta per godersi momenti di relax all’aria aperta.

 

DESCRIZIONE DEGLI SPAZI

 

La proprietà offre ambienti luminosi e ben distribuiti, ed è composta da:

  • Ampio soggiorno vista mare

  • Cucina abitabile

  • Tre camere da letto, di cui una con splendida vista mare

  • Due terrazze, una con affaccio diretto sulla spiaggia e l’altra fiorita, con angolo barbecue ideale per pranzi e cene all’aperto

 

IL BORGO

 

Follonica è una vivace località balneare situata sulla costa toscana, affacciata sul Golfo del Tigullio, tra Punta Ala e Piombino. Nota per le sue spiagge sabbiose, le acque limpide e il clima mite, è ideale per famiglie, sportivi e amanti del relax.

Oltre al mare, Follonica offre una piacevole passeggiata sul lungomare, negozi, ristoranti e numerosi eventi estivi. La città è anche vicina a bellezze naturali e culturali come il Parco di Montioni, Massa Marittima, e la famosa Cala Violina.

Una meta perfetta per chi cerca una vacanza tra natura, mare e tradizione toscana.

 

+393491137593